Vloerplannen (Floorplans)

Heldere 2D- en 3D-vloerplannen op basis van je Matterport Pro3 3D-scan. Beschikbaar als extra service na aankoop van een 3D-scan.

Animatie vloerplan

Waarom vloerplannen via Snap360?

Professionele plannen die je ruimte duidelijk presenteren. Ze kunnen enkel besteld worden in combinatie met een Matterport Pro3 3D-scan, zodat maatvoering en nauwkeurigheid gegarandeerd zijn.

Nauwkeurige maatvoering

Afmetingen en oppervlaktes op basis van je Pro3-scan.

Handige exports

2D (PNG/PDF) en optioneel CAD-/DXF-exports op aanvraag.

Snel geleverd

Korte doorlooptijd en duidelijke oplevering.

Voor woning & bedrijf

Van residentieel tot industrieel vastgoed.

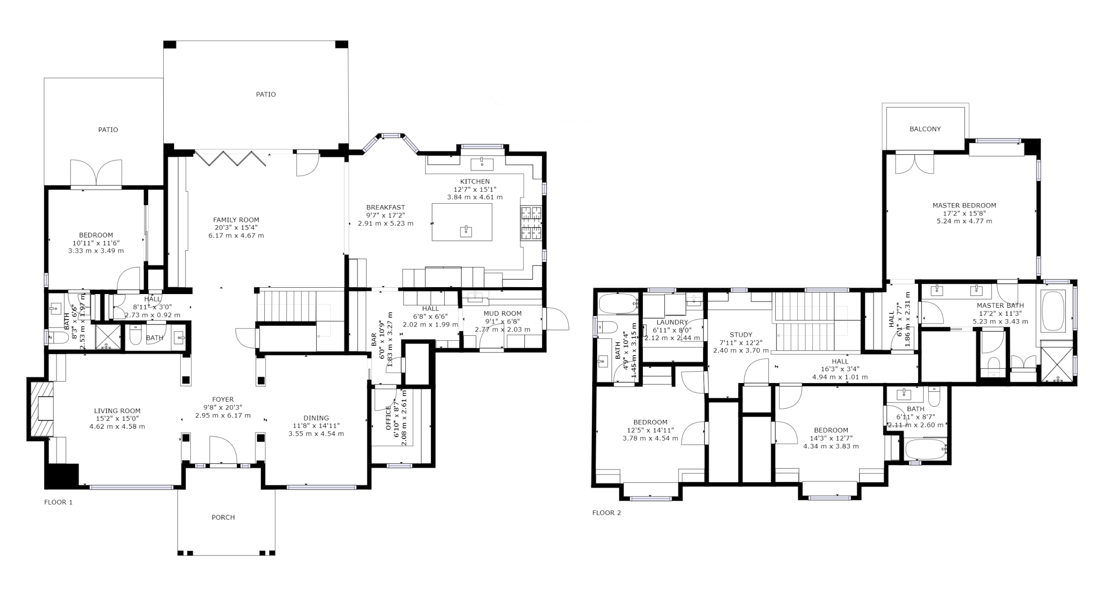
Praktijkvoorbeeld

Een voorbeeldvloerplan op basis van een Matterport Pro3 3D-scan.

Werkwijze

Van scan tot plan in drie stappen.

  1. 1. Scan & input

    We gebruiken je Matterport Pro3 3D-scan (of plannen een scan in).

  2. 2. Uitwerking

    Wij genereren en controleren het vloerplan, inclusief maatvoering.

  3. 3. Oplevering

    Je krijgt het plan in afgesproken formaat (PNG/PDF, optioneel DXF/CAD).

Startprijzen vloerplannen

Indicatieve prijzen voor vloerplannen. Alleen beschikbaar als uitbreiding op een Pro3-scan. Combineerbaar met je virtuele tour.

2D Vloerplan (1 verdiep, tot 185 m²)

vanaf € 141,57 incl. btw

  • PNG/PDF export
  • Basismaten & oppervlaktes
  • Kleur of zwart-wit
Offerte aanvragen

2D/3D Vloerplan (vanaf ± 560 m²)

vanaf € 275,15 incl. btw

  • 2D + optioneel 3D weergave
  • PNG/PDF, optioneel DXF/CAD
  • Project-specifieke annotaties
Offerte aanvragen

Klaar voor duidelijke vloerplannen?

Vraag jouw vloerplan aan →